Attentione, per offrirti un'esperienza di navigazione migliore, questo sito web utilizza cookie. Se non si modificano le impostazioni del browser, l'utente accetta.

Torna Indietro
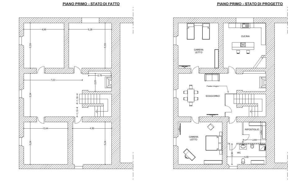
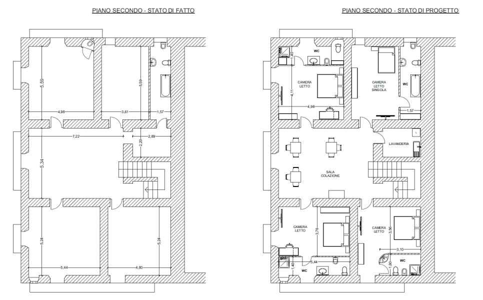
Piante stato di fatto e di progetto con panoramica dei lavori ipotizzati

Piante stato di fatto e di progetto con panoramica dei lavori ipotizzati

NB: Nell’ingresso del palazzo al piano terra sono previsti esclusivamente interventi superficiali di ripristino dell’intonaco e delle finiture

*** per ingrandire le piante dei piani clicca sulle imagini qui sotto ***


Joomla Gallery makes it better. Balbooa.com

Palazzo De Nigris

L’intervento previsto consiste in un’opera di manutenzione straordinaria dell’immobile, finalizzata alla realizzazione di:

  • una casa vacanza al primo piano;
  •  un B&B al secondo piano, composto da quattro camere da letto con bagno privato e una sala comune per la colazione.

Il progetto si inserisce all’interno di una iniziativa imprenditoriale legata al PNRR, Investimento 2.1 “Attrattività dei borghi storici”, volto alla rigenerazione culturale e sociale dei piccoli borghi italiani. L’intervento, limitato all’interno dell’unità immobiliare per via del budget contenuto, non prevede modifiche alla cubatura, sagoma o destinazione d’uso dell’edificio.
Non sono previsti lavori sulle strutture portanti, ad eccezione del trattamento conservativo dell’orditura in legno e del rifacimento di alcuni massetti. Verranno inoltre mantenuti inalterati gli elementi tipologici, formali e strutturali dell’edificio.

LAVORAZIONI PREVISTE AL PRIMO PIANO

  • Realizzazione ex novo di un bagno e un ripostiglio all'interno di uno dei vani del piano, mediante suddivisione interna e predisposizione impiantistica.

  • Intervento di manutenzione sulle travi in legno, consistente in:

    • Rimozione manuale dei depositi incoerenti e dei rivestimenti non aderenti,

    • Pulizia delle superfici lignee,

    • Trattamento disinfestante e protettivo.
      Nota: Particolare attenzione sarà riservata alle travi del solaio del vano destinato a bagno e ripostiglio.

  • Realizzazione degli impianti (idraulico, elettrico e di scarico) con passaggio delle tubazioni preferibilmente sotto pavimento o a parete, a seconda delle condizioni tecniche.

  • Chiusura e ripristino delle tracce murarie eseguite per il passaggio degli impianti, con riempimento e rifacimento degli intonaci.

  • Stuccatura, rasatura e tinteggiatura delle pareti interne interessate dagli interventi.

 CONSIDERAZIONI SUI LAVORI AL PRIMO PIANO

Descrizione dello stato dei solai e delle modalità d’intervento

I solai dell’edificio sono tutti realizzati in legno, ad eccezione di quello della cucina. Le travi lignee risultano complessivamente in buono stato di conservazione e non presentano segni di inflessione.

Unica eccezione è rappresentata dal solaio della stanza destinata alla realizzazione del bagno/ripostiglio: in questo caso, le travi e il tavolato, pur strutturalmente integri, risultano rivestiti con carta, oggi degradata e trasformata in materiale incoerente. Tale rivestimento sarà rimosso manualmente con attrezzature appropriate.

Tutte le travi del piano saranno oggetto di trattamento antiparassitario.

Interventi sugli impianti

Per la posa degli impianti si adotterà una soluzione volta a minimizzare l’interferenza con le murature esistenti, privilegiando il passaggio sotto pavimento. A tale scopo, si procederà alla rimozione puntuale delle singole file di pavimentazione, all’esecuzione delle tracce nel massetto, al loro successivo riempimento, e infine alla ricollocazione dei materiali originari.

L’intero processo sarà documentato fotograficamente, al fine di garantire il pieno ripristino delle condizioni preesistenti.

Nessun intervento impiantistico è previsto per la cucina, in quanto già dotata di impianti funzionanti realizzati dal precedente proprietario.

LAVORAZIONI PREVISTE AL SECONDO PIANO

  • Smontaggio della pavimentazione in cotto antico, con cura per il recupero e la successiva reinstallazione.

  • Demolizione dei massetti esistenti, compresa la rimozione e il conferimento dei materiali di risulta.

  • Realizzazione di nuovi massetti, predisposti per accogliere il passaggio delle tubazioni impiantistiche.

  • Posa delle tubazioni impiantistiche all’interno dei nuovi massetti, prima della chiusura definitiva.

  • Ripristino della pavimentazione originaria in cotto, mediante reposa degli elementi recuperati e integrazione ove necessario.

  • Realizzazione di tre bagni in camera, con creazione di nuove partizioni interne leggere e impianti dedicati.

  • Chiusura delle tracce murarie eseguite per l’alloggiamento delle tubazioni, mediante riempimento e rifacimento degli intonaci.

  • Stuccatura, rasatura e tinteggiatura delle superfici murarie interne interessate dagli interventi.

  • Recupero e manutenzione degli infissi in legno, comprensiva di eventuale riparazione, pulizia e trattamenti protettivi.

CONSIDERAZIONI SUI LAVORI AL SECONDO PIANO

La pavimentazione in cotto risulta in parte già distaccata dal massetto, a causa di pregresse infiltrazioni d’acqua provenienti dalla copertura. Ciò ha consentito di eseguire un saggio diretto sul massetto, costituito da sabbia sciolta, con uno spessore superiore ai 20 cm.
Il rifacimento del massetto del solaio mediante l’impiego di calcestruzzo leggero strutturale a base di argilla espansa permetterà una significativa riduzione dei carichi permanenti agenti sulla struttura, garantendo al contempo un efficace consolidamento del solaio stesso.

Segue una stima preliminare ma già significativa del miglioramento ottenuto con il rifacimento dei massetti:

Stratigrafia 1

Strato Spessore (cm) Carico (kN/m²)
Pavimento in cotto antico 1 0.18
Massetto in sabbia sciolta 25 4.00
Tavolato in noce 3 0.225

Totale carico permanente Stratigrafia 1: 4,405 kN/m²

Stratigrafia 2

Strato Spessore (cm) Carico (kN/m²)
Pavimento in cotto antico 1 0.18
Massetto alleggerito 3 0.36
Telo tecnico 0.2 0.00
Calcestruzzo leggero strutturale 7 0.98
Rete metallica Ø8 mm, maglia 15x15 - 0.10
Tavolato in noce 3 0.225

Totale carico permanente Stratigrafia 2: 1,845 kN/m²

Stratigrafia 1 presenta un carico permanente totale di 4,405 kN/m², mentre Stratigrafia 2 si attesta a 1,845 kN/m². La seconda stratigrafia comporta una riduzione di circa 2,56 kN/m², pari al 58% circa.

Al fine di contenere i nuovi carichi strutturali, le pareti divisorie destinate alla realizzazione dei bagni saranno eseguite in cartongesso idrofugo, idoneo per ambienti umidi. Anche considerando i carichi accidentali aggiuntivi previsti nelle stanze da letto — derivanti dalla presenza della parete in cartongesso e degli accessori sanitari — stimati complessivamente in circa 1,6 kN/m², si ottiene comunque una sensibile riduzione dei carichi complessivi gravanti sul solaio rispetto alla configurazione originaria di circa 0,96 kN/m², pari al 21,8% circa. .

La nuova stratigrafia proposta consente una significativa riduzione dei carichi permanenti, migliorando le condizioni statiche del solaio e rendendolo più adatto in interventi di consolidamento o riqualificazione strutturale future.

Con il rifacimento dei massetti, l’incidenza delle tracce sulle murature risulterà fortemente ridotta, in quanto le tubazioni di collegamento potranno essere alloggiate direttamente all’interno del nuovo massetto di posa

Date

20 Maggio 2025

Categories

Piante stato di fatto e di progetto
Torna Indietro